top of page
MKZK
MİMARLIK

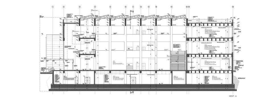
SİVAS İL HALK KÜTÜPHANESİ
YER: SİVAS
PROJE ALANI: 8350 M2
PROJE YILI: 2013
İŞVEREN: MİLLİ EĞİTİM BAKANLIĞI / SİVAS VALİLİĞİ

bottom of page













